Котел 1.45 МВт без дымососа на самотяге в Караганде

Котел 1.45 МВт работающий без дымососа
Котел 1.45 МВт без дымососа
Котел 1.45 МВт без дымососа чертеж
Чертеж котла 1.45 МВт без дымососа
Водогрейный котел 1.45 МВт работающий без дымососа
Водогрейный котел 1.45 МВт без дымососа
Колосниковая топка котла 1.45 МВт работающего без дымососа
Колосниковая топка котла 1.45 МВт без дымососа
Изготовление котла 1.45 МВт работающего без дымососа
Изготовление котла 1.45 МВт без дымососа
Производство котлов 1.45 МВт работающих без дымососа
Производство котлов 1.45 МВт без дымососа
Котел 1.45 МВт работающий без дымососа
Котел 1.45 МВт без дымососа чертеж
Водогрейный котел 1.45 МВт работающий без дымососа
Колосниковая топка котла 1.45 МВт работающего без дымососа
Изготовление котла 1.45 МВт работающего без дымососа
Производство котлов 1.45 МВт работающих без дымососа
Цена
6 442 680 ₸
От 6 442 680 ₸ с доставкой до г.
  • Работает без дымососа на естественной тяге
  • Дутье и тяга регулируются шиберами
  • Развитая поверхность нагрева обеспечивает высокий КПД
  • Легкий выход котла на номинальную мощность даже при плюсовой температуре
  • Надежная работа котла обеспечивается изготовлением трубной системы из трубы сталь 10-20 повышенной прочности

Технические характеристики котла 1.45 МВт без дымососа на самотяге

МаркаКотел 1.45 без дымососа
ВидВодогрейный
Тип отопительного котлаТвердотопливный
БрендHEATEXPERT
ТипКотел КВр
Вид топкиРучная, Колосники
Максимальная тепловая мощность1.45 МВт
Максимальная тепловая мощность1450 кВт
Максимальная тепловая мощность1.25 Гкал
Диапазон регулирования мощности50-100 %
ТопливоТвердое, Уголь
Низшая теплота сгорания проектного топлива5230 кКал/кг
КПД котла на УГЛЕ, не менее80 %
Расход УГЛЯ среднечасовой за отопительный сезон164 кг/ч
Расход УГЛЯ при максимальной нагрузке котла287 кг/ч
Расход условного топлива214 кг/ч
Минимальная температура воды на входе в котел55 °С
Максимальная температура воды на выходе из котла115 °С
Давление воды, не более0.3-0.6 (3-6) МПа (кгс/см²)
Номинальный расход теплоносителя50 м³/ч
Расход теплоносителя через котел min-max37-62 м³/ч
Гидравлическое сопротивление при номинальном расходене более 0.07 (0.7) МПа (кгс/см²)
Аэродинамическое сопротивление230 (23.45) Па (мм. вод. ст.)
Разряжение в топочной камере20-40 (2-4) Па (мм. вод. ст.)
Объем уходящих газов6250 м³/ч
Температура уходящих газов220 °С
ТягаЕстественная
Водяной объем котла1100 л
Объем топочной камеры3.66 м³
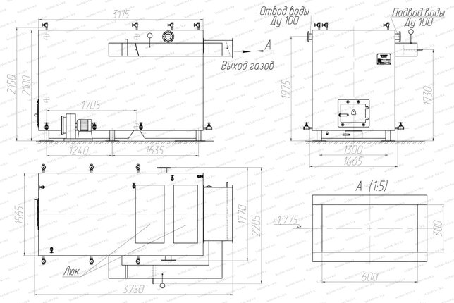
Размер топочной камеры, длина*ширина*высота2015х960х1810 мм
Активная площадь решетки горения2.02 м²
Присоединительные размеры по водяному тракту125 Ду
Присоединительные размеры газохода уходящих газов, ширина*высота / сечение800х300 / 0.24 мм/м²
Габаритные размеры котла, длина*ширина*высота4300х2000х2400 мм
Масса3600 кг
Конструкция котлаВодотрубная
Количество контуровОдноконтурный
РазмещениеНапольный
Тип камеры сгоранияОткрытый
УправлениеЭлектронное
Принцип работы твердотопливного котлаКлассический
ЭнергонезависимыйНет
Тип питанияТрехфазное
Встроенный циркуляционный насосНет
Встроенный расширительный бакНет
Отапливаемая площадьот 12200 до 16000 м²
Отапливаемый объемот 36400 до 47800 м³
ЭнергоэффективностьВысокая

Твердотопливный котел 1.45 МВт с естественной тягой в Караганде

Водогрейный котел на самотяге мощностью 1.45 МВт работает на каменном и буром угле без дымососа. Угольный котел применяется для отопления и горячего водоснабжения маленьких и больших помещений и зданий. Нагревает воду температурой до 115 °С и давлением 0,3-0,6 МПа. Используется в котельных с ручными топками.

Промышленный водонагревательный котел 1,45 МВт на естественной тяге работает без дымососа, что снижает энергозатраты в отопительный сезон. Высокий КПД котла 80% достигается благодаря большой поверхности нагрева. Особенность конструкции заключается в специальной системе тяги и дутья, которую обеспечивает дымовая труба и вентилятор. Даже при плюсовой температуре наружного воздуха, агрегат без труда выходит на номинальную мощность. При этом дым не выбивается в котельную и конденсат поверхностей нагрева исключен.

Принцип работы котла 1.45 МВт на естественной тяге

Тяга в отопительном котле без дымососа 1,45 МВт создается за счет высоты дымовой трубы 18 метров и разности температур наружного воздуха с дымовыми газами. В зимний период тяга легко устанавливается. Но, в начале отопительного сезона, когда температуры не сильно различаются, необходимо разогреть дымовую трубу. Для этого часть горячих газов пускается через обводной газоход. После прогрева трубы устанавливается стабильная тяга, перекрывается газоход, котел выходит на максимальный КПД.

Конструкция котла 1.45 МВт без дымососа

Промышленный отопительный котел без дымососа 1 45 МВт состоит из топочной и конвективной частей.

Топочная часть. Топка выполнена в газоплотном исполнении для исключения присосов холодного воздуха.

Горение происходит на колосниковой, либо водоохлаждаемой решетке. Топливо укладывается ровным слоем, не более 200 мм.

Колосниковая топка собирается из чугунных колосников с щелевидными отверстиями. Отверстия необходимы для провала золы в зольный короб и подачи воздуха для горения. Воздух подается при помощи вентилятора, либо за счет естественной тяги.

Водоохлаждаемая камера состоит из труб с проходящей по ним водой. Вода охлаждает конструкцию, исключает перегрев и прогорание колосников. Отверстия небольшого диаметра располагаются по всей поверхности колосников для равномерной подачи воздуха в слой топлива. Размер отверстий препятствует провалу не догоревшего топлива. Топливо находится в топке до полного выгорания.

Конвективная часть. Конвективная поверхность водотрубного котла 1,45 МВт на естественной тяге выполнена из плотных регистров, вставленных друг в друга в шахматном порядке. Это обеспечивает значительную нагревательную площадь и высокий коэффициент передачи тепла. В связи с этим горячие дымовые газы подвергаются охлаждению до 180-200 °С.

Котельный блок. Водогрейный котел 1.45 МВт на самотяге для отопления изготавливается из труб обшитых теплоизоляцией и стальными листами. Для очистки конвективных пакетов имеются люки. Чистка зольного короба производится через дверку. Обводной газоход устанавливается сбоку вверху топочной камеры и присоединяется в газоход за котлом.

Комплект поставки

Стационарный напольный котел 1,45 МВт с естественной тягой включает базовую комплектацию. В состав базовой комплектации входит: вентилятор поддува, клапаны, вентили, манометры, термометры, трехходовые краны.

Дополнительная комплектация

  • циркуляционный насос - обеспечивает циркуляцию воды в котлоагрегате;
  • подпиточный насос – позволяет пополнять объем теплоносителя в контуре;
  • дымовая труба – создает тягу, удаляет дымовые газы от котла за пределы помещения и рассеивает их в атмосфере. Подбирается по техзаданию.

Купить котел 1.45 МВт на естественной тяге

Для того, что бы купить котел 1.45 МВт работающий без дымососа на самотяге в Караганде вы можете сделать заявку по телефону +7-7172-69-59-73, либо оформить заявку онлайн. Менеджеры дадут консультацию по подбору вспомогательного оборудования для выбранных вами моделей и рассчитают стоимость доставки. Транспортирование котлоагрегата и вспомогательного оборудования до объекта осуществляется автомобильным транспортом.

Комплект поставки котла 1.45 МВт без дымососа на самотяге

Вентилятор
Вентилятор 2,5 с дв. 4/3000
1 штука
Затвор Ду 125
Затвор Ду 125
2 штуки
Колосники котлов
Колосник 840x220
9 штук
Клапан предохранительный Ду 50
Клапан Ду 50
1 штука
Клапан обратный
Клапан обратный
1 штука
Манометр МП 160
Манометр МП 160
2 штуки
Кран трехходовой ДУ 15
Кран Ду 15
2 штуки
Термометр ТТЖО
Термометр ТТЖО
2 штуки
Оправа термометра ОПТ
Оправа ОПТ
2 штуки
Вентиль Ду 15
Вентиль Ду 15
4 штуки
Вентиль Ду 20
Вентиль Ду 20
9 штук

Вспомогательное оборудование для работы котла 1.45 МВт без дымососа на самотяге

Насос К консольный
К 80-65-160
Цена 455 376 тг.
Насос К консольный
К 65-50-125
Цена 336 444 тг.
Насос TD
Насос TD65-34G2 (7.5 кВт)
Цена 1 238 292 тг.
Насос TD
Насос TD80-29G2 (7.5 кВт)
Цена 1 294 896 тг.
Насос CHL
Насос CHL4-40 (0.75 кВт)
Цена 352 344 тг.

Аналоги котла 1.45 МВт без дымососа на самотяге

Котел КВр-1.45 К
Котел КВр 1.45 МВт
Вид топкиРучная, Колосники
Максимальная тепловая мощность, МВт1.45
ТопливоТвердое, Уголь
Отапливаемая площадь, м²от 12200 до 16000
Цена 6 245 520 тг.
Котел 1.45 с топкой ОУР
Котел 1.45 с ОУР
Вид топкиРучная, ОУР
Максимальная тепловая мощность, МВт1.45
ТопливоТвердое, Уголь
Отапливаемая площадь, м²от 12200 до 16000
Цена 6 207 360 тг.
Котел 1.45 МВт дрова уголь
Котел 1.45 МВт уголь дрова
Вид топкиРучная, Колосники, ОУР
Максимальная тепловая мощность, МВт1.45
ТопливоТвердое, Уголь, Дрова
Отапливаемая площадь, м²от 12200 до 16000
Цена 6 557 160 тг.
Котел 1.25 МВт работающий без дымососа
Котел 1.25 МВт без дымососа на самотяге
Вид топкиРучная, Колосники
Максимальная тепловая мощность, МВт1.25
ТопливоТвердое, Уголь
Отапливаемая площадь, м²от 10400 до 13600
Цена 6 302 760 тг.
Котел 1.1 МВт работающий без дымососа
Котел 1.1 МВт без дымососа на самотяге
Вид топкиРучная, Колосники
Максимальная тепловая мощность, МВт1.1
ТопливоТвердое, Уголь
Отапливаемая площадь, м²от 8800 до 12700
Цена 5 342 400 тг.

Сертификат и качество котла 1.45 МВт без дымососа на самотяге

Сертификат на водогрейные котлы на твердом и жидком топливе
Сертификат на водогрейные котлы на твердом топливе

Собственное производство

Котельный завод производит
  • Паровые котлы от 300 кг до 2.5 тонны пара в час
  • Промышленные водогрейные котлы от 150 КВт до 4 МВт на всех видах топлива
  • Механические топки ТШПМ, шурующая планка и ТЛПХ, ленточное полотно прямого хода
  • Циклоны для очистки воздуха и дымовых газов для производств и промышленных отраслей
  • Транспортеры и системы топливоподачи и шлакоудаления
Подробнее о производстве
Собственное производство
Смотреть видео
с производства