Паровой котел на мазуте 1000 кг (1.0 т пара) - 115°С -0,07 МПа / 0,7 кгс/cм² в Караганде

Котел паровой 1000 кг 115 С на мазуте и отработанном масле
Паровой котел 1000 кг 115 С на мазуте и отработанном масле
Чертеж парового котла 1000 кг 115 С на мазуте и отработанном масле
Паровой котел 1000 кг 115 С на мазуте и отработанном масле чертеж
Паровой мазутный котел 1000 кг в час с температурой 115 С
Мазутный паровой котел 1000 кг в час с температурой 115 С
Мазутный жаротрубный котел 1000 кг пара в час 115 С
Жаротрубный мазутный котел 1000 кг пара в час 115 С
Паровой котел 1000 кг в час на мазуте и отработанном масле температура пара 115 С изготовление
Изготовление парового котла 1000 кг в час на мазуте и отработанном масле температура пара 115 С
Паровой котел на мазуте 1000 кг 115 С производство
Производство мазутных паровых котлов 1000 кг 115 С
Чертеж парового мазутного котла 1000 кг 115 С
Мазутный паровой котел 1000 кг 115 С чертеж
Котел паровой 1000 кг 115 С на мазуте и отработанном масле
Чертеж парового котла 1000 кг 115 С на мазуте и отработанном масле
Паровой мазутный котел 1000 кг в час с температурой 115 С
Мазутный жаротрубный котел 1000 кг пара в час 115 С
Паровой котел 1000 кг в час на мазуте и отработанном масле температура пара 115 С изготовление
Паровой котел на мазуте 1000 кг 115 С производство
Чертеж парового мазутного котла 1000 кг 115 С
Цена
9 896 160 ₸
От 9 896 160 ₸ с доставкой до г.
Логотип WhatsApp Связаться
по WhatsApp
  • Непрерывная выработка сухого пара независимо от нагрузки котла
  • Отсутствие температурных расширений обеспечивает надежность конструкции
  • Подпитка котла производится даже холодной водой +5 ºС
  • Удобная очистка поверхностей нагрева без остановки котла

Технические характеристики

МаркаSTEAMEXPERT
ВидПаровой котел КП
Вид топкиМазутная горелка
Конструкция котлаЖаротрубный
Производительность1000 кг/ч
Производительность1.0 т/ч
Максимальная тепловая мощность0.74 МВт
Диапазон регулирования мощности40-100 %
ТопливоМазут, Жидкое
Низшая теплота сгорания проектного топлива9260 кКал/кг
КПД котла на МАЗУТЕ, не менее80 %
Расход топлива77 нм³/ч
Расход условного топлива102 кг/ч
Температура пара, не более115 °С
Давление пара, не более0.07 МПа
Давление пара, не более0.7 (кгс/см²)
Давление пара, не более0.7 бар
Полный объем котла3.55 м³
Объем паровой части0.33 м³
Аэродинамическое сопротивление13 (1.3) Па (мм. вод. ст.)
ТягаПринудительная
Объем топочной камеры1.91 м³
Размер топочной камеры, диаметр*глубина1195х1700 мм
Присоединительные размеры выхода пара125 Ду
Присоединительные размеры по водяному тракту32 Ду
Присоединительные размеры по дымовым газам / диаметр дымовой трубы350 мм
Габаритные размеры котла, длина*ширина*высота3600х1800х2100 мм
Масса3200 кг
ЭнергоэффективностьВысокая
БрендSTEAMEXPERT

Паровой котел на мазуте STEAMEXPERT Е 1.0 0.07 115 ТЖ в Караганде

Промышленный паровой котел на мазуте Е 1.0 Караганда предназначен для производства пара температурой до 115 °С и давлением 0.07 МПа на технологические нужды для вашего производства. Парогенератором пользуются бетонные заводы при производстве ЖБИ изделий, химические предприятия, строительные организации, воинские части, больницы, бани, предприятия нефтегазовой, кожевенной, пищевой.

Наши паровые мазутные котлы STEAMEXPERT Е 1,0 0,07 имеют следующие преимущества

  • Большая поверхность испарения препятствует выносу капель воды и увеличивает скорость испарения
  • Дополнительное разделение пара от воды в паросборной камере. Повышается качество пара путем улавливания капелек воды из пара 
  • Большая паровая камера обеспечивает непрерывную подачу пара при любой нагрузке и сокращает время выхода на заявленную производительность
  • Эффективная конвективная часть котла способствует высокой скорости нагрева воды
  • Отсутствие тепловых расширений благодаря комбинированной компановке
  • Большой водяной объем котла 1,0 т позволяет производить подпитку холодной водой +5° без температурных колебаний
  • Чистка конвективного пакета паром без остановки котла. На задней стенке агрегата находятся лючки для обдувки. Обдувка производится аппаратом для обдувки при минимальной нагрузке и максимальном давлении

Жаротрубный паровой котел пар 1000 кг низкого давления можно перевести в водогрейный режим изменив схему подключения.

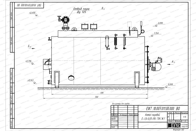
Устройство парового котла 1000 кг в час на мазуте

Промышленный стальной паровой котел КП 1000 на мазуте и отработке изготавливается в горизонтальном исполнении и состоит из двух цилиндров, паросборника, конвективной части. Цилиндры размещаются один в другом и соединяются фланцами. Внутренний цилиндр – это топочная часть генератора. Межцилиндрическое пространство заполняется водой, сверху приваривается паросборник, на который крепятся 2 предохранительных клапана.

К фронтовой плите крепится горелка для подачи топлива в топку жаротрубного котла. Мазутный паровой котел 1000 кг работает с длиннофакельными горелками ILKA. В качестве топлива может применяться мазут и отработанные масла. Продукты сгорания выводятся чрез дымовую трубу. В основании дымовой трубы установлен предохранительный клапан.

Вода в цилиндрический котел steam 1000 подается насосом. На паровой промышленный котел желательно устанавливать рабочий и резервный насосы. Дренажи и воздушники производят дренирование трубной системы от шлама и удаление скапливающего воздуха.

Безопасность установки обеспечивают клапаны. При повышении давления выше допустимого, срабатывают клапаны осуществляя автоматический выпуск пара.

Автоматика парового котла предусмотрена для управления и защиты. В случае отклонения от заданных параметров происходит световой и звуковой сигнал.

Паровой котел Е 1.0 0.07 115 ТЖ на мазуте принцип работы

Мазут сгорает в топочной части парового котла Е 1 0 0 07, окруженной водяной охлаждаемой рубашкой. Продукты горения проходят через трубный пучок и выходят в верхней части генератора.

Трубный пучок находится за камерой горения. Трубки заполнены водой и омываются горячими газами, за счет чего происходит теплообмен. Пар образуется при испарении нагреваемой воды и собирается в верхней части котлоагрегата, над которой выполнена паросборная камера, далее через паропровод направляется потребителю на технологические нужды.

Монтаж и подключение

Горизонтальный паровой котел 1000 кг в час на мазуте и отработанном масле для производства пара поставляется блоками максимальной заводской готовности. Агрегат устанавливается в котельной на специально подготовленную ровную поверхность. Подсоединяется по воде, устанавливается запорная арматура на подводящем трубопроводе и отводящем паропроводе, предохранительные клапаны и контрольно-измерительные приборы. Подсоединяется вентилятор и автоматика.

Купить мазутный паровой котел Е 1.0-0.07-115 ТЖ

Для того чтобы купить паровой котел 1000 кг пара в час на мазуте в Караганде, вы можете сделать заявку по телефону +7-7172-69-59-73, либо оформить заявку онлайн. Менеджеры дадут консультацию по подбору вспомогательного оборудования для выбранных вами моделей и рассчитают стоимость доставки. Транспортирование котлоагрегата и вспомогательного оборудования до объекта осуществляется автомобильным транспортом.

Комплект поставки

Клапан предохранительный КПС
Клапан предохранительный самопритирающийся
2 штуки
Вентиль Ду 20
Вентиль Ду 20
1 штука
Шаровый кран
Кран шаровый
5 штук
Указатель уровня
Указатель уровня
2 штуки
Устройство запорное Ду 20
Запорное устройство Ду 20
2 штуки
Затвор Ду 125
Затвор Ду 125
1 штука
Клапан обратный
Клапан обратный
1 штука
Кран трехходовой ДУ 15
Кран Ду 15
3 штуки
Манометр ДМ2005 Сг 10.0 кгс см2
Манометр ДМ2005Сг 10,0 кгс/см2
2 штуки
Манометр МП 160
Манометр МП 160
1 штука

Дополнительно потребуется

Горелка СибСтронг мазутная
Цена по запросу
Дымовые трубы
Цена по запросу
CDM насос
Насос CDM 1-4 (0.37 кВт)
Цена по запросу
Pedrollo насос
Насос Pedrollo CP-132 (0.55 кВт)
Цена 190 164 тг.
Газоход котла
Цена по запросу

Похожая продукция

Котел паровой 1000 кг 130 С на мазуте и отработанном масле
Паровой котел на мазуте 1000 кг (1.0 т пара) - 130°С -0,17 МПа / 1,7 кгс/cм²
Производительность, кг/ч1000
ТопливоМазут, Жидкое
Температура пара, не более, °С130
Давление пара, не более, МПа0.17
Цена 9 768 960 тг.
Котел паровой 1.0 тонны 170 С на мазуте и отработанном масле
Паровой котел на мазуте 1000 кг (1.0 т пара) - 170°С -0,9 МПа / 9 кгс/cм²
Производительность, кг/ч1000
ТопливоМазут, Жидкое
Температура пара, не более, °С170
Давление пара, не более, МПа0.9
Цена 12 033 120 тг.
Котел паровой 700 кг 115 С на мазуте и отработанном масле
Паровой котел на мазуте 700 кг (0.7 т пара) - 115°С -0,07 МПа / 0,7 кгс/cм²
Производительность, кг/ч700
ТопливоМазут, Жидкое
Температура пара, не более, °С115
Давление пара, не более, МПа0.07
Цена 6 092 880 тг.
Котел паровой 1500 кг 115 С на мазуте и отработанном масле
Паровой котел на мазуте 1500 кг (1.5 т пара) - 115°С -0,07 МПа / 0,7 кгс/cм²
Производительность, кг/ч1500
ТопливоМазут, Жидкое
Температура пара, не более, °С115
Давление пара, не более, МПа0.07
Цена 10 888 320 тг.
Котел паровой 1000 кг 115 С на дизеле
Дизельный паровой котел 1000 кг (1.0 т пара) - 115°С -0,07 МПа / 0,7 кгс/cм²
Производительность, кг/ч1000
ТопливоЖидкое, Дизель
Температура пара, не более, °С115
Давление пара, не более, МПа0.07
Цена 7 352 160 тг.

Сертификаты товара

Сертификат на котлы отопительные паровые КП
Сертификат на котлы отопительные паровые КП

Опросные листы

Все опросные листы
Опросный лист на паровой котел
Заполнить опрос

Собственное производство

Котельный завод производит
  • Паровые котлы от 300 кг до 2.5 тонны пара в час
  • Промышленные водогрейные котлы от 150 КВт до 4 МВт на всех видах топлива
  • Механические топки ТШПМ, шурующая планка и ТЛПХ, ленточное полотно прямого хода
  • Циклоны для очистки воздуха и дымовых газов для производств и промышленных отраслей
  • Транспортеры и системы топливоподачи и шлакоудаления
Подробнее о производстве
Собственное производство
Смотреть видео
с производства